TEE EQUAL DN25 HSF3 1.4404 FIT TO DIN
TEE EQUAL DN25 HSF3 1.4404 FIT TO DIN
TEE EQUAL DN25 HSF3 1.4404 FIT TO DIN
TEE EQUAL DN25 HSF3 1.4404 FIT TO DIN

Alfa Laval TEE EQUAL DN25 HSF3 1.4404 FIT TO DIN (9611309251)

Marka : Alfa Laval

Fiyat bilgisi için lütfen teklif isteyiniz.

Alfa Laval TEE EQUAL DN25 HSF3 1.4404 FIT TO DIN
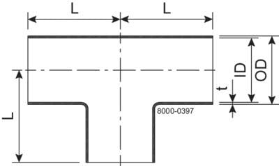
Hat Çapı (Size)
DN25
Model
Tee, form TS
PartsFor
DIN 11850
Dimension
28/25 x 1.5
Accordingto
Not Acc. to standard
Material
1.4404 (316L)
ConnectionType
Welding ends
Finish
OD/ID: Semi Bright
cultureSettings.RegionId: 0 cultureSettings.LanguageCode: TR